Title of Property: Elizabeth on Bay
Island: New Providence/Paradise Island
Listed Price: $732.08
Property Type: Building Only
Rental Amount: 732
Business Name: Elizabeth on Bay Plaza & Marina
Business Type: Commercial
Operating Cost per SqFt: 30.00
Unit Number: 17/18
Rental Amount: 732
Business Name: Elizabeth on Bay Plaza & Marina
Business Type: Commercial
Operating Cost per SqFt: 30.00
Unit Number: 17/18
Currency: BSD
Unit Rentable Area: 251
Unit Rentable Area: 251
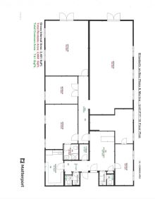
Description: The Elizabeth on Bay Plaza & Marina, the once-large 3400+ Sqft. Workspace is now being offered as 5 individual private suites which can be outfitted to better accommodate your brand and business functionality. Whether you need a small office to escape the confines of home or a large office to help propel your business into being a household name. The Elizabeth on Bay Plaza has it all. Office #3 is a 251 Sq Ft space listed at $35.00 per square foot per annum, including CAM. It also features 2 bathrooms, a break room, a kitchen, a reception area, and a stairwell, which will then operate as a communal space for all tenants. Please look at the attached floor plan and Matterport virtual tour for better reference.
MLS Number: 60286
Date Modified: 11/07/2025
Listed by: Hideaways Real Estate
